Search

Location

Newsletter

Get the latest offers directly in your inbox

We will inform you each month about newly listed properties for sale or for rent.

Newsletter

Thank you for your interest

Registration for the newsletter went well.

Newsletter

Get the latest offers directly in your inbox

An error occurred, please try again later

Rent

Office building Prague 8, Karlín, Šaldova

Rented

Office building

Completely renovated, originally Functionalist building from the 40s of the 20th century, with a modern addition and a peaceful courtyard garden. The building offers office space for lease in an attractive location of Prague 8.

Completely renovated, originally Functionalist building from the 40s of the 20th century, with a modern addition and a peaceful courtyard garden. The building offers office space for lease in an attractive location of Prague 8.

Location:
The building is located in the "old" part of Karlín and is easily accessible by car and public transport - the metro station Křižíkova (line B), tram and bus stops are about 5 minutes walk-away. Easy connection with the city centre and the D8 motorway.

Features and Services:
Openable windows
Heating, air conditioning
Own sanitary facilities
Controlled access to common areas
24/7 security
EPS, CCTV
Chip access
Underground garages

Rental and service charges listed without VAT. Lessee pays no commission.

Continue reading

Facilities

  • Garage

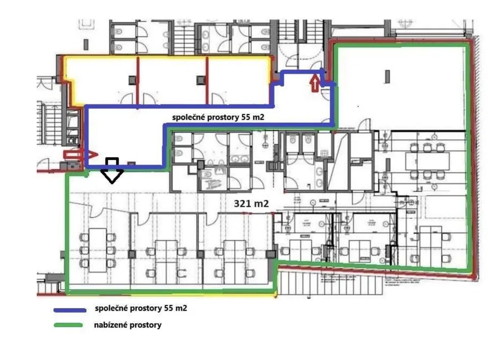
Floor plan

Overview table

  • Reference number

    21416
  • Monthly rent

    Rented
  • Service charges

    CZK 132 monthly per m²
  • Total building size

    2 017 m²
  • Parking

    Yes
  • Building Energy Rating

    C
  • Download

Contact us

See other projects in the area Capital City of Prague

The data presented in this listing is purely informative in nature and does not constitute an offer in the sense of § 1731 or § 1732 of the Civil Code, nor is it a public promise pursuant to § 1733 of the Civil Code. The offer also does not give rise to anyone’s entitlement to a contract. SVOBODA & WILLIAMS s.r.o. only mediates the information gained in good faith from the owner of the property and therefore bears no responsibility for its accuracy or completeness, nor is it authorized to conclude any type of sales contract pertaining to the property on behalf of the owner.